Via Giardino, Bardi, Apartment
Description
- Immobiliare Bardi offers the exclusive sale of a two bed apartment on the third and top floor of a building comprising approximately nine units.
The property, strategically located on the outskirts of Bardi, boasts the exceptional characteristic of being centrally located while maintaining maximum tranquility.
INTERIOR
The 75 sq m apartment is immediately habitable but is suitable for improvements.
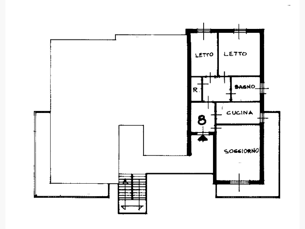
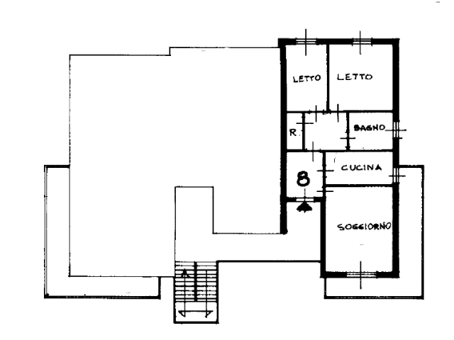
The front door, reached via the covered communal staircase, opens into a hallway leading to a large, bright living room leading to the panoramic balcony, a kitchen, and the hallway leading to the sleeping area.
The sleeping area, in turn, comprises two double bedrooms, a bathroom with window and bathtub, and a closet.
Independent heating with a gas boiler and radiators.
EXTERIOR
Balconies with panoramic views of the northeast and southeast sides of the property (approximately 20 sq m).
LOCATION
Bardi, a pearl among the Tuscan-Emilian hills, is not only a town steeped in history, but also a place of great excellence, such as the Bardigiana horse breeding farm, the production of Parmigiano di Montagna cheese, and a hub for mushroom picking, sport hunting, and fishing.
Located in a scenic location on the slopes of Mount Crodolo in the upper Ceno Valley, the town of Bardi offers numerous services, including a kindergarten, elementary and middle schools, a post office, a gas station, banks, municipal offices, healthcare, bars, restaurants, shops, and a minimarket.
The area is served by major telephone companies.
Energy Class: G.
Overview
- SQM: 51 - 100 SQM
Sale price
Sale price: €40,000
Property Features
- Floors: 1
N. of bedrooms: 2- Bathrooms: 1
SQM: 75mq- Proposal: For Sale
- Availability: Immediate
Condition: Good
Heating
- Heating: Independent
Amenities
- Balcony
Energy performance certificate
- Energy performance certificate: G
Distances
Multimedia
Virtual Tour
Location
Location: Bardi, Bardi Centro
44.634419
9.730867
Via Giardino, 1 Bardi
Sale price:
€40,000 Sale price SQM
75mq SQM Condition:
Good ConditionN. of bedrooms:
2 N. of bedrooms
€40,000 Sale price SQM
75mq SQM Condition:
Good ConditionN. of bedrooms:
2 N. of bedrooms 2000
WALKING
km
en
15
100%
400px
https://immobiliarebardi.it/wp-content/uploads/2020/08/house-1.png
20
54.5
Distance
Address
Walking time
min
Details
it




















