Località Dorbora, Villetta plurifamiliare
Descrizione
- Immobiliare Bardi propone in esclusiva la vendita di un immobile, oggetto di recente ristrutturazione, composto da ben 3 unità immobiliari e da ampio giardino, nella Val Dorbora sulla riva sinistra dell’omonimo fiume.
Punto di forza della proprietà è indubbiamente la radiosa vista sulla vallata circostante che dal promontorio su cui sorge la proprietà appare ancor più raggiante.
La proprietà si sviluppa su circa 5000 metri quadrati di giardino, ogni appartamento è di circa 110 mq ed incorpora elementi di finiture della migliore qualità.
Grazie alle ampie stanze ed agli affacci strategici, all'interno dell'immobile si è accolti da una coinvolgente sensazione ariosa, mentre dalle finestre dei piani alti, con il garrire delle rondini, che nel periodo primaverile tornano nei loro nidi costruiti nel sottogronda dell’immobile, la sensazione è quella di vivere piacevolmente sospesi fra le nuvole.
La proprietà offre una grande opportunità per la generazione del reddito dall'eventuale locazione degli appartamenti sia con contratti di locazione lunghi che con affitti estivi.
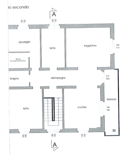
INTERNI
Gli appartamenti che compongono l’immobile sono tre, il piano terra di 108 mq, il primo ed il secondo di 112 mq.
L’appartamento al piano terra ha l’ingresso nella parte dell’immobile prospiciente la vallata e da qui direttamente nel corridoio che conduce ai locali, dapprima della zona giorno, addentrandosi della zona notte. Partendo dal lato destro dell’entrata troviamo in successione: il salotto, una camera singola ed una matrimoniale; sul fondo del corridoio il primo locale bagno per poi proseguire con un’ulteriore camera matrimoniale, un secondo bagno e l’ampia cucina abitabile con doppia esposizione.
Gli appartamenti al primo ed al secondo piano hanno la distribuzione simile dei locali dell’appartamento al piano terra, differiscono unicamente nella posizione del locale bagno. A differenza del primo piano, gli accessi sono raggiungibili percorrendo la scala comune con arrivo diretto in ogni appartamento a metà corridoio. L’appartamento all'ultimo piano è mansardato ma grazie ad una recente e moderna ristrutturazione risulta essere il più arioso grazie alla zona giorno open space.
GIARDINO:
La proprietà è situata in zona super panoramica prospiciente la Val Ceno a circa 610 m s.l.m..
Sono 5000 i metri quadrati di terreno coltivati a prato distribuiti su una collinetta che ammantano la proprietà e sono tanti gli angoli relax ricavabili all'aperto per mangiare o semplicemente contemplare i riposanti ritmi della campagna circostante.
L’area parcheggio ospitante fino a 3 posti auto è collocata alla fine del breve viale di accesso che costeggia un ruscello ricco di vegetazione, in prossimità del garage.
POSIZIONE:
La proprietà è collocata in una posizione particolarmente favorevole infatti: siamo a soli 15 minuti dal paese di Bardi nonché con brevi spostamenti è possibile intraprendere gli innumerevoli itinerari culturali e naturalistici che si snodano tra la provincia di Piacenza e la provincia di Parma potendo così vivere tutto il territorio più verde della regione.
Le bellezze della Toscana, della Liguria e dell’Emilia Romagna sono ben raggiungibili sia attraverso i percorsi di montagna sia servendosi dei percorsi autostradali come l’autostrada della Cisa (A15) a circa 50 minuti d'auto grazie al casello autostradale di Fornovo di Taro.
Appena fuori dalla proprietà si possono fare lunghe e piacevoli passeggiate: una tra le tante quella che conduce il piccolo villaggio di Costageminiana, il paese in cui visse la Beata Margherita Antoniazzi.
INCLUSO NELLA PROPRIETA'
Box Auto di 61 mq circa
Classe Energetica F
La zona è servita dalle principali compagnie telefoniche.
Panoramica
- Metri quadri: 401 - 450 mq
Prezzo
Prezzo: €150,000
Caratteristiche immobile
- Piani: 3
Camere: 9- Bagni: 4
Superficie commerciale: 349mq- Area di terreno: 5000mq
- Proposta: In vendita
- Disponibilità: Immediata
Stato: Recentemente ristrutturato
Riscaldamento
- Riscaldamento: Autonomo
Particolarità
- Box auto
- Copertura internet
- Balcone
- Giardino
- Parcheggio
Certificazione energetica
- Certificazione energetica: F
Distanze
Multimedia
Posizione
Posizione: Bardi, Loc. Dorbora
44.636597
9.666853
Località Dorbora, Bardi
Prezzo:
€150,000 Prezzo Superficie commerciale
349mq Superficie commerciale Stato:
Recentemente ristrutturato StatoCamere:
9 Camere
€150,000 Prezzo Superficie commerciale
349mq Superficie commerciale Stato:
Recentemente ristrutturato StatoCamere:
9 Camere 2000
WALKING
km
en
15
100%
400px
https://immobiliarebardi.it/wp-content/themes/nexos/assets/img/markers/empty.png
20
54.5
Distance
Address
Walking time
min
Details
en



