Località Costa
- €40.000
Descrizione
Immobiliare Bardi propone in vendita un caratteristico immobile, composto da 2 appartamenti di 40 mq l’uno e da una porzione di casa cielo terra di circa 90 mq dislocata su 3 livelli, circondata da un giardino di 1000 mq con fiori, piante ed erbe aromatiche tipici dell’appennino Tosco Emiliano.
Immobiliare Bardi propone in vendita un caratteristico immobile, composto da 2 appartamenti di 40 mq l’uno e da una porzione di casa cielo terra di circa 90 mq dislocata su 3 livelli, circondata da un giardino di 1000 mq con fiori, piante ed erbe aromatiche tipici dell’appennino Tosco Emiliano.
Siamo in località Costa, una piccola frazione in Emilia Romagna nell’alta Val Ceno, a circa 700 m s.l.m. inserito nell’inconfondibile fisionomia del paesaggio collinare a pochi chilometri da Bardi, paese medievale famoso per la sua cultura ricchissima fatta di tradizioni antiche e bellezze artistiche uniche.
La conservazione di tutti i dettagli originali della struttura riconducono ad una tipica costruzione di campagna che grazie alle aree esterne, limitrofe alla struttura, attrezzate con il forno a legna e ombreggiate dagli imponenti alberi regalano momenti indimenticabili dall’alba al tramonto.
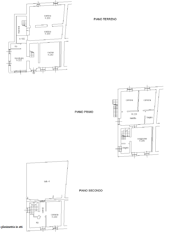
INTERNI:
Appartamenti: I due appartamenti, entrambi di 40 mq, sono rispettivamente al piano terra ed al primo piano dell’immobile. La porta d’ingresso si apre direttamente nella cucina abitabile riscaldata da stufe a legna e da cui è possibile accedere a 2 camere da letto e al locale bagno (non finestrato) con vasca. L’accesso all’appartamento del primo piano è unicamente tramite una scala esterna che costeggia il lato della casa prospiciente il giardino.
Porzione di casa: I tre piani in cui si suddivide la porzione di casa di ben 90 mq sono collegati tra loro tramite una scala interna. La porta d’ingresso principale si apre al piano terra dove si trova la zona giorno composta da cucina, sala con ampia finestra su un area dove è possibile attrezzata la zona pranzo all’aperto. Completa il piano terra un bagno di servizio con doccia e le spaziose cantine. Al primo e secondo piano è riservata la zona notte con due camere da letto matrimoniali una singola ed un ampio bagno.
IL GIARDINO
L’immobile è circondato da un giardino di oltre 1000 mq, per la maggior parte adibito a prato.
Il terreno è leggermente scosceso verso l’immobile e tutto intorno la casa troviamo alberi ad alto fusto come pini alberi da frutto, vite, erbe aromatiche, rose e piante ornamentali.
Il grande giardino, con la zona pranzo ombreggiata, sono stati concepiti per soddisfare le più svariate esigenze, anche se il vero fiore all’occhiello della proprietà come da tradizione è il bellissimo forno a legna.
POSIZIONE:
Vivere questa proprietà significa vivere a stretto contatto con la natura, annusare la lavanda ed il rosmarino, sapendo che appena fuori dalla proprietà si possono fare lunghe e piacevoli passeggiate anche fino al piccolo villaggio di Costageminiana, il paese in cui visse la Beata Margherita Antoniazzi.
La proprietà è collocata in una posizione particolarmente favorevole, infatti siamo a soli 15 minuti dal paese di Bardi e consente con brevi spostamenti di intraprendere innumerevoli itinerari culturali e naturalistici che si snodano tra la provincia di Piacenza e la provincia di Parma vivendo tutto il territorio più verde della regione.
Le bellezze della Toscana, della Liguria e dell’Emilia Romagna sono ben raggiungibili sia attraverso i percorsi di montagna sia servendosi dei percorsi autostradali: Autostrada del Sole (A1) Autostrada della Cisa (A15).
La zona è servita dalle principali compagnie telefoniche
Classe energetica: G
Dettagli
Aggiornato il Gennaio 13, 2026 a 8:40 am-
ID proprietà IB66
-
Prezzo €40.000
-
Area 170 Mq
-
Camere 7
-
Bagni 4
-
Tipologia Porzione di casa e appartamento
-
Stato Vendita
-
Stato Subito abitabile
-
Disponibilità Subito disponibile
-
Agenzia Agenzia di Bardi
In evidenza
Classe energetica
-
Classe energetica: G
- A+
- A
- B
- C
- D
- E
- F
-
| Classe energetica GG
- H
Indirizzo
Apri su Google Maps-
Indirizzo: Località Costa
-
Città: Bardi
-
Area: Loc. Costa

