Via Roma 18, 1° Piano
- €198.000
Descrizione
Immobiliare Bardi propone in esclusiva la vendita di un raffinato appartamento di 230 mq che occupa l’intero primo piano di un piccolo e signorile palazzo in stile Liberty affacciato sulla piazza principale di Bardi.
Caratterizzato da ampi spazi di rappresentanza, l’immobile si distingue come una residenza esclusiva dall’atmosfera ricercata.
La luce naturale entra generosa dalle numerose finestre, accarezzando i volumi e mettendo in risalto materiali pregiati come i pavimenti in marmo, i parquet e i soffitti decorati da cornici d’epoca.
Ogni ambiente della dimora racconta cura, eleganza e un senso di accoglienza autentica.
INTERNI
Si accede all’ampio androne del palazzo direttamente da Via Roma, oltrepassando il cancello e salendo i pochi gradini esterni che conducono all’androne del palazzo nel piano rialzato.
L’appartamento, situato al primo piano, è raggiungibile tramite la spaziosa scala interna ad uso condominiale che collega armoniosamente tutti i livelli dell’immobile.
L’ingresso si apre su un luminoso disimpegno, dal quale si accede da un lato allo studio, ben separato dagli ambienti domestici, e dall’altro al lungo corridoio centrale su cui si affacciano tutti i locali della dimora.
Sul lato sinistro del corridoio si trovano due ampi saloni comunicanti tra loro, impreziositi da un elegante camino a legna e da un balcone con affaccio suggestivo su Piazza Vittoria.
A destra la cucina, ampia e abitabile, è collegata alla porzione di giardino posta sul retro dell’immobile tramite una passerella esterna in acciaio, che ne facilita l’accesso e ne esalta la funzionalità.
La zona notte comprende tre spaziose camere matrimoniali, di cui una predisposta anche per accogliere un bagno en suite.
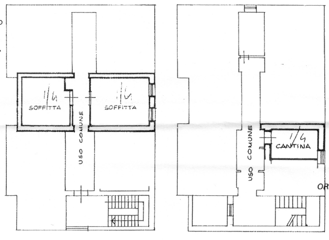
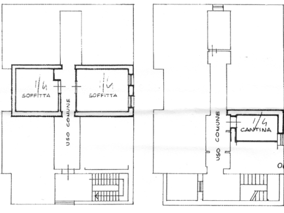
Completano la proprietà due locali nel piano sottotetto, ideali come deposito, oltre a un’autorimessa e a una cantina situate al piano seminterrato.
ESTERNI
La proprietà è racchiusa all’interno di una recinzione in pietra, sormontata da un’inferriata ornamentale, sulla quale si aprono tre accessi distinti: un ingresso pedonale e due passi carrabili ciascuno affacciato sulla strada provinciale ombreggiata dagli antichi tigli.
Sul retro, un’area cortilizia conduce alla zona verde, disposta su un terreno dolcemente digradante e suddivisa in porzioni ben definite tra le tre proprietà che compongono il palazzo.
Questo spazio esterno, riservato e ricco di potenzialità, completa la cornice di un immobile che unisce eleganza architettonica e funzionalità quotidiana.
POSIZIONE
Situato nel cuore di Bardi, l’immobile ha a disposizione, nelle immediate vicinanze tutti i servizi come: asilo, scuole elementari e medie, ufficio postale, distributore di benzina, banche, uffici municipali, assistenza sanitaria, bar, negozi, e minimarket.
Bardi è un paese ricco di storia, fascino e cultura.
Con una breve passeggiata dalla proprietà si possono scoprire scorci suggestivi, panorami inattesi e opere d’arte di grande valore, alcune delle quali legate profondamente alla tradizione parmigiana, come la celebre Pala dipinta a tempera su tavola dal Parmigianino nel 1521.
Qualunque sia la destinazione, partire da Bardi significa attraversare paesaggi rurali, colline lussureggianti e località intrise di storia: un viaggio che appaga lo sguardo e il palato.
La dimora proposta rappresenta una soluzione ideale per chi desidera una casa che unisca comodità e suggestione, coniugando la praticità della vita in centro con l’atmosfera unica di un contesto storico e paesaggistico di grande pregio.
AREE COMUNI
Locale lavanderia al piano seminterrato;
Area cortilizia esterna situata sul retro dell’immobile;
Ampio androne.
Riscaldamento autonomo per le parti di proprietà e condominiale per le parti comuni.
Classe energetica G
Dettagli
Aggiornato il Maggio 22, 2026 a 7:50 am-
ID proprietà IB242
-
Prezzo €198.000
-
Area 260 mq
-
Dimensione terra 12 mq
-
Camere 4
-
Stanze 8
-
Bagno 1
-
Garage 1
-
Tipologia Appartamento
-
Stato Vendita
-
Stato Subito abitabile
-
Disponibilità Subito disponibile
-
Agenzia Agenzia di Bardi
Classe energetica
-
Classe energetica: G
- A+
- A
- B
- C
- D
- E
- F
-
| Classe energetica GG
- H
Indirizzo
Apri su Google Maps-
Indirizzo: Via Roma, 18 Bardi
-
Città: Bardi
-
CAP: 43032
-
Area: Bardi centro, Bardi
Video
Immobili simili
Via Principi Landi, Bardi
- €63.000
Via Giardino, Bardi
- €60.000
Via dei Carpini, Bardi
- €68.000
Località Granere, Bardi
- €30.000




































